We are actively seeking out sites across the Belfast City Council area to be assessed for suitability for our pilot project.

Our intentional community will be able to house up to 65 people across 12-20 individual housing units, plus a common house.
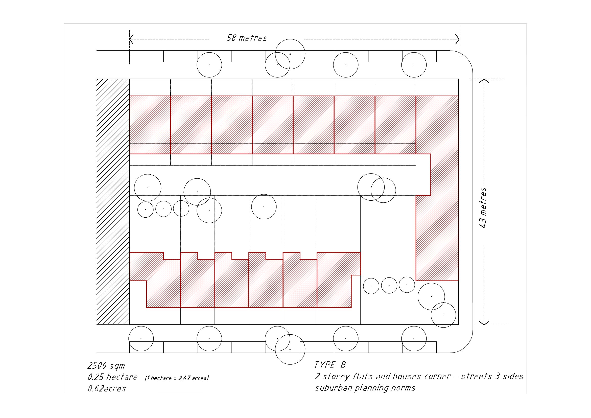
A visual example of a potential scheme is shown to the left. This drawing was based on a city centre location in traditional Belfast two-up two-down style, where on-street parking and road infrastructure would not be required.
As an integral part of the community, the common house will be built at the same time as the housing units.
We want our common house to include shared seating areas, shared laundry facilities, a shared kitchen and guest rooms for visitors.
We estimate that we will need a site of at least 1500sqm to successfully establish our intentional community.

Below are some examples of how we imagine our Belfast Cohousing Pilot Project could look:
What is Mutual Home Ownership?
The Mutual Ownership model is an innovative concept, designed as an alternative to conventional home ownership. Instead of individuals owning their own homes, all the properties on a development are owned by the Belfast Cohousing Cooperative Society. Residents pay a monthly charge to the co-operative society, in return for which they build up their share of the equity in the society. The charge also includes an element towards the cost of management and maintenance of the buildings, communal spaces and common house. This gives residents an interest in the value of the housing assets owned by the co-op. When a resident leaves, they can take the monetary value of their equity share with them. The value of equity may be indexed to an appropriate external measure such as local wages.
Houses remain permanently affordable*
By disconnecting the occupation of the property from the underlying value of the land, it protects the scheme from fluctuations in the property market. Homes are affordable generation after generation.

The overall cost of borrowing is cheaper
There is a single mortgage, held by the co-operative society, which means that the scheme is open to residents who may be unable to obtain an individual mortgage in the traditional way.
Management of the homes is controlled by residents
Residents of the scheme are members of the Cooperative. The community makes decisions together using a process called ‘Sociocracy’. Residents co-design and co-manage the project.

*Belfast Cohousing defines ‘affordability’ in terms of ownership as no more than 30% of gross income or 35% of net income’, and ‘affordable rent’ as at Local Housing Allowance (LHA) rates.
What is Sociocracy?
Sociocracy is the method by which we make decisions. It’s our governance system, just like democracy or corporate governance methods. Decisions are made with the consent of the entire group and all views are fully taken into account. It’s best suited for organizations that want to self-govern based on the values of equality.
In January 2023 our members participated in 4 training sessions in Sociocracy provided by Sociocracy For All (SoFA). New members joining Belfast Cohousing will be able to learn more about Sociocracy through similar trainings.
To find out more about Sociocracy we recommend visiting SoFA’s info page as a starting point – Sociocracy – basic concepts and principles.
Belfast Cohousing Feasibility Report
We published our feasibility report in March 2022. It outlines the details of our project, and how it will fit into the overall housing picture within Belfast. Feel free to download the report using the Download button below.





